New Central Bath and Sports Facility design by Hermansson Hiller Lundberg Arkitekter

New Central Bath and Sports Facility design by Hermansson Hiller Lundberg Arkitekter
 
 
 
 
 
 
 
 
 
 
 
 
 
 
 
 
 
 
 
 
 
 
 
 
 
 
 
 
 
 
 
 
 
 
 
 
 
 
 
 
 
 
 
 
 
 
 
 
 
Project: New Central Bath and Sports Facility
Location: Gothenburg, Sweden
Architects:
Hermansson Hiller Lundberg Arkitekter 
A collaboration with Veauthier Architekten, Kragh Berglund Landscape Architecture, Tyréns, Andersson & Hultmark and FSD.
Renders: Filippo Bolognese
 
Our proposal OPEN HOUSE is based on the idea of sport as a cultural meeting place and that a swimming and sports facility has a profound emotional significance for a city and its residents.
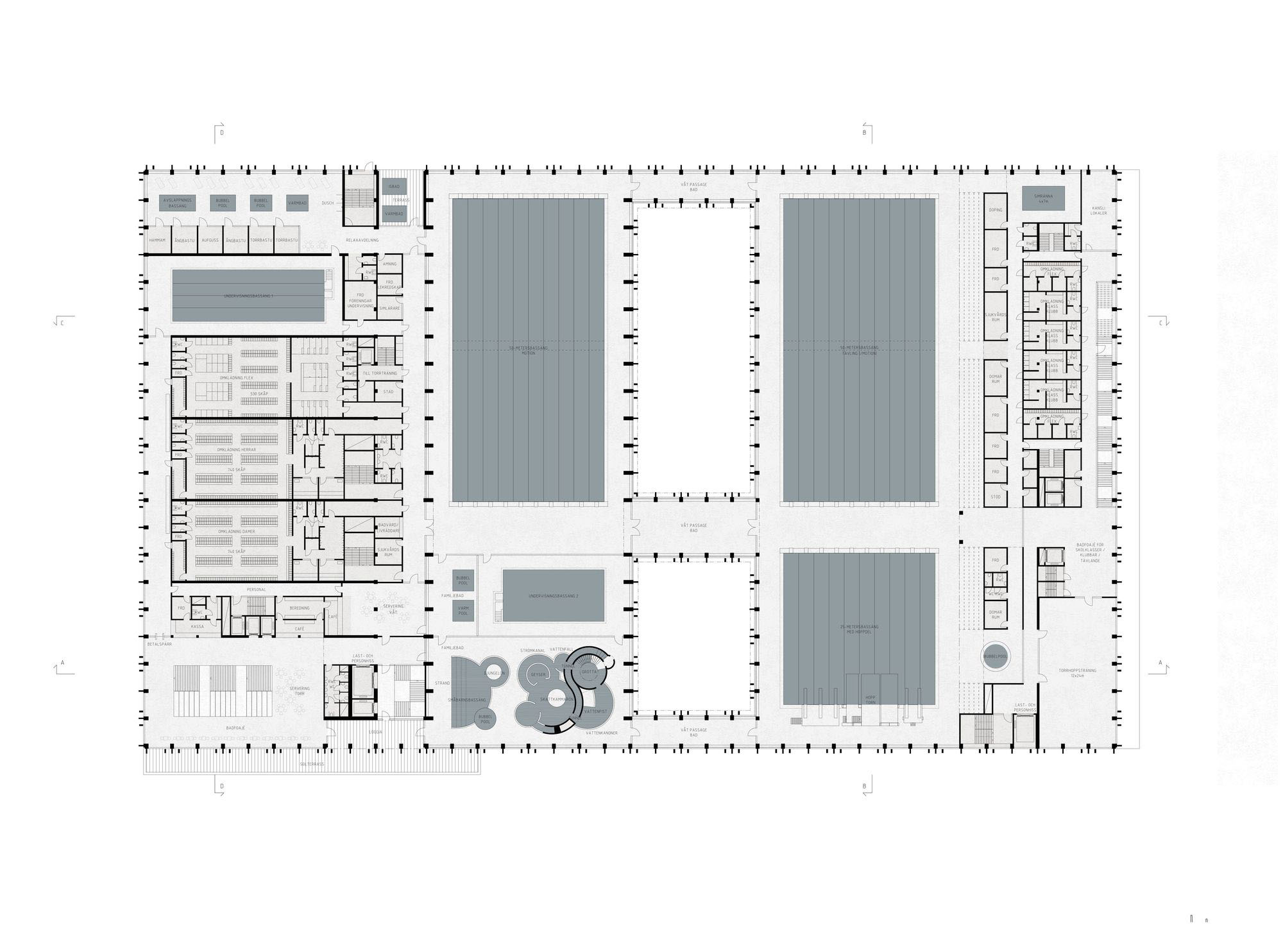
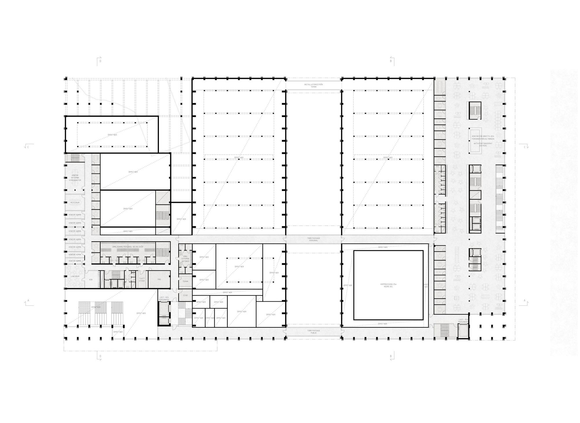
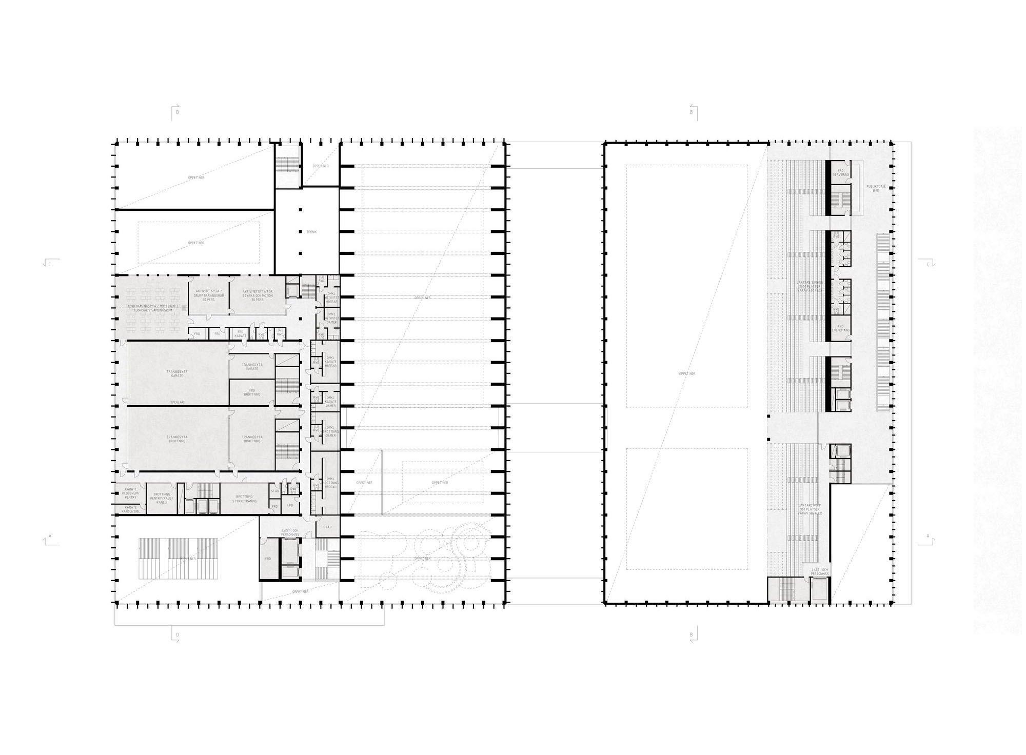
The new building has an extensive and complex programme organised within a compact urban block structure. The 45.000 sqm programme contains what would be Sweden’s largest bathing and swimming facility, for both exercise and competition, combined with four sports halls, gym, cafés and offices. Central to our proposal was clarity, orientation and overview, along with a structural concept of building in wood.
The facility was designed to be open to everyone: young and old, families and individuals, rehab patients and elite athletes. Always open, always in use. An open house.
 
Source: Hermansson Hiller Lundberg Arkitekter 
m i l i m e t d e s i g n   –   w h e r e   t h e   c o n v e r g e n c e   o f   u n i q u e   c r e a t i v e s 
TYPE OF WORKS
Sign up to join the millimeterdesign community
Most Viewed Posts
milimet banner
DATAA