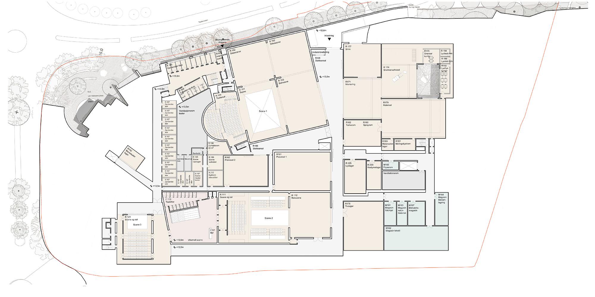
Project: Museum and Rogaland Theatre extension
Location: Stavanger, Norway
Architects: Dorte Mandrup + Holon
Our concept “Fjellspeil” (Mountain Mirror) refers to the Norwegian mountain as a place where history and Norwegian identity are built. The Norwegian national soul is closely linked to the mountain, both as a resource and as a bearer of culture and identity. The mirror is a symbol of the function of the theater and the museum as institutions that reflect and show our lives.
Source: Dorte Mandrup + Holon
m i l i m e t d e s i g n – w h e r e t h e c o n v e r g e n c e o f u n i q u e c r e a t i v e s